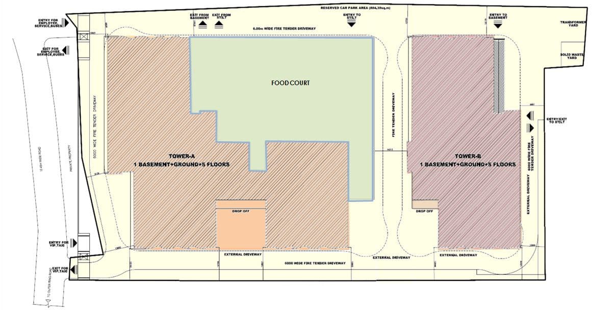
Welcome To Mantri Commercial, Bengaluru
Mantri Commercial is strategically located on the Marathalli - Sarjapur Outer Ring Road, Bangalore which has always been the preferred destination for corporates. The Project consists over 2 Office blocks of ground plus 5 floors each with a 30,000 square feet landscaped food court area and ample green areas providing lung space to occupiers.This state of the art project also houses amenities including bus bays, cafes, ATMs and many more
